行業資訊
市政工程豎向設計實用技巧總結
一、豎向設計的概念:(垂直設計、豎向布置)
結合場地的自然地形特點、平面功能布局與施工技術條件,在研究建、構筑物及其他設施之間的高程關系的基礎上,充分利用地形、減少土方量,因地制宜地確定建筑、道路的豎向位置,合理地組織地面排水、有利于地下管線的敷設,并解決好場地內外的高程銜接。
豎向設計的基本任務:
? 進行場地地面的豎向布置
? 確定建、構筑物的高程
? 擬定場地排水方案
? 安排場地的土方工程
? 設計有關構筑物
二、豎向設計的原則:
①滿足建、構筑物的使用功能要求
②結合自然地形、減少土方量
③滿足道路布局合理的技術要求
④解決場地排水問題
⑤滿足工程建設與使用的地質、水文等要求
⑥滿足建筑基礎埋深、工程管線敷設的要求
三、豎向設計的現狀資料:
地形圖——地形測繪圖(1:500、1:1000)(0.05-1.00等高線)(50-100m縱橫坐標網)
建設場地的地質條件資料
場地平面布局——場地內的建、構物
場地道路布置
場地排水與防洪方案
地下管線的情況
填土土源與棄土地點
四、豎向設計的成果:
設計說明書 、豎向布置圖 、有關技術經濟指標 、土方圖
五、地面的豎向設計布置形式(場地平整程度、高差變化)

平坡式:

臺階式:

六、地面的豎向設計布置形式的相關內容:
1、臺階式
1)臺階式布置:
臺階的尺寸:需要寬度、容許寬度
容許的寬度:
B=(175~180)× H填 / i地-i整
一般整平坡度應在0.5%——2%
2)臺階的高度:
相鄰臺階之間的高差稱為臺階高度。臺階高度主要取決于場地自然地形橫向坡度和相鄰臺階之間的功能關系、交通組織及其技術要求。
臺階高差一般以3.0——4.0m為宜(最高4.0——6.0m),以免道路坡道過長、交通組織困難并增加擋土墻等支擋結構工程量。
臺階高度也不宜過低,一般不小于1.0m。
3)相鄰臺階的連接方式:
邊坡處理和擋土墻:

邊坡:


4)按降雨量劃分臺階高度:


5)兩個的關系:護坡是建筑在邊坡上的附屬工程,是起保護邊坡不被雨水沖刷或邊坡綠化作用的,而擋土墻是為了保護高路基減少放坡或保護河道等作用,它們之間沒有特別的關系,有的護坡底角(力點)作用在擋土墻上,它們可以是單獨的,也可以兩兩相幫襯,但護坡必須在邊坡上。
邊溝是設置在挖方路基(路塹)兩側,排水溝是設置在填方路基(路基)兩側。功能和結構基本相同,排水溝尺寸會略大一些。
邊溝是排雨水量小的地方邊溝是指路基邊緣的排水溝,主要用以匯集和排除路基范圍內和流向路基的小量地面水;排水溝是將邊溝、截水溝、路基附近的積水排到橋涵處或路基之處的天然河溝里的水溝。
6)邊坡的放坡要求(填、挖方邊坡要求):


2、擋土墻:防止路基填土或山坡巖土坍塌而修筑的、承受土體側壓力的墻式構造物。
常見的斷面形式有以下幾種:
1.直立式
2.傾斜式
3.臺階式
4.重力式
5.懸臂式
1)擋土墻、護坡與建筑的最小間距應符合下列規定:
1、 居住區內的擋土墻與住宅建筑的間距應滿足住宅日照和通風的要求; 2 、高度大于2m的擋土墻和護坡的上緣與建筑間水平距離不應小于3m,其下緣與建筑間的水平距離不應小于2m。
2)臺階與建、構筑物的距離:
位于穩定土坡坡頂上的建筑物、構筑物,當基礎寬度小于3m時,其基礎底面外邊緣至坡頂的水平距離s(圖6.3.6),應符合下式要求,并不得小于2.5m



3)擋土墻的型式及選擇:
1、 使墻背土層壓力最小,其中仰斜墻的主動土壓力最小,而俯斜壓墻主動土壓力最大,垂直墻主動土壓力介于前兩者之間。
2、挖填方要求看,當邊坡挖方時,仰斜墻背與開挖的邊坡緊密地結合,而俯斜壓墻背則需回填土;搜建筑
3、當邊坡填土時,仰斜墻背填方夯實困難而垂直墻與俯斜墻夯實較容易。
4、墻前地形平坦時,用仰斜墻較合理,墻前地形較陡時,用垂直較合理。
4)擋土墻的基礎置埋深度(保護,穩固)

5)擋土墻排水措施:

6)擋土墻的加固:


七、豎向設計的方法:
1、建筑基地地面和道路坡度應符合下列規定:(1)基地地面坡度不應小于0.2%,地面坡度大于8%時宜分成臺地,臺地連接處應設擋墻或護坡;
(2 )基地機動車道的縱坡不應小于0.2%,亦不應大于8%,其坡長不應大于200m,在個別路段可不大于11%,其坡長不應大于80m;在多雪嚴寒地區不應大于5%,其坡長不應大于600m;橫坡應為1%~2%;
(3)基地非機動車道的縱坡不應小于0.2%,亦不應大于3%,其坡長不應大于50m;在多雪嚴寒地區不應大于2%,其坡長不應大于1OOm;橫坡應為1%~2%;
(4 )基地步行道的縱坡不應小于0.2%,亦不應大于8%,多雪嚴寒地區不應大于4%,橫坡應為1%~2%;
(5)基地內人流活動的主要地段,應設置無障礙人行道。搜建筑注:山地和丘陵地區豎向設計尚應符合有關規范的規定。
豎向設計的方法(平土方式):

3、豎向設計的方法(常用表達方法):

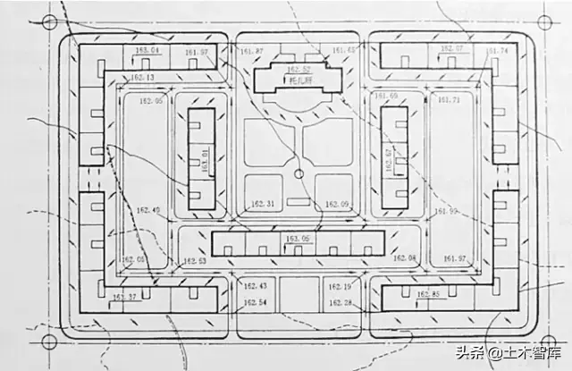
(1)高程箭頭法
高程箭頭法其表達內容:
?根據豎向設計的原則及有關規定,在總平面圖上確定設計區域內的自然地形;
?注明建、構筑物的坐標與四角標高、室內地坪標高和室外設計標高;
?注明道路及鐵路的控制點(交叉點、變坡點)處的坐標及標高;
?注明明溝溝底面起坡點和轉折點的標高、坡度、明溝的高度比;
?用箭頭表明地面的排水方向
?較復雜地段,可直接給出設計剖面。


(2)縱橫斷面法
縱橫斷面法其表達內容:
?繪制方格網
?確定方格網交點的自然標高
?選定標高起點
?繪制方格網的自然地面立體圖
?確定方格網交點的設計標高
?設計場地的土方量

(3)設計等高線法


八、土石方與防護工程主要項目指標:

九、坡面
1、非機動車車行道規劃縱坡與限制坡長:

2、城市主要建設用地適宜規劃坡度





3、建筑物與地形坡面的關系:

4、建筑物結合地形布置的方法:








十、建筑物的室內外地坪高差(建筑物室內外地坪的最小高差):

(注:在軟弱土壤地區,最小差值宜取上限)
十一、道路交叉口的處理:


十二、場地雨水的排水方式:

各種明溝夠深和縱坡度要求:


十三、廣場基本形態
1、單脊廣場基本形態:



2、雙脊廣場基本形態:


十四、處理好填、挖關系:
1.多挖少填
2.重挖輕填
3.上挖下填
4.近挖近填
5.避免重復填挖
安排好地表覆土——覆土順序一般為:上土下巖;大塊在下、細粒
在上;酸堿性巖土在下、中性巖土在上;不易風化的在上、易風化
的在上;不肥沃的土在下、肥沃的土在上。
十五、施工高程的確定、標注零界線、土方量的計算:



1、土方工程的其他有關問題:
土壤經過挖掘后,土體的原組織結構破壞,其體積必然增大。只有經過一段時間后,由于上層土壓的作用和雨水浸潤,或經過夯實后,土壤顆粒再度結合,才能基本密實;但仍不能把挖松的土壤夯實到原來體積——可松動性
松土系數——其體積與原體積之比為土壤的疏松系數
2、基礎、道路及管溝的余土估計:
1)建筑物、構筑物、設備基礎的余方量
2)地下室土方量
3)道路路槽余方量
4)管線地溝的余方量
十六、建筑定位:外墻尺寸



注:歡迎大家去V X 公眾號“土木智庫”,里面有小編整理的建筑行業的眾多資料,有一建、二建、造價、消防視頻和課件,歡迎大家的加入
更多相關信息 還可關注中鐵城際公眾號矩陣 掃一掃下方二維碼即可關注

文章推薦
- 為何說全域土地綜合整治是“千萬工程”迭代升級的重要平臺和抓手?
- 如何依據國土空間主體功能區定位,制定差異化的整治措施?
- 如何通過全域土地綜合整治,推動耕地數量、質量、生態“三位一體”保護?
- 340個整治區、220萬畝修復治理,廣東全域土地整治加速鋪開
- 廣東9個全域土地綜合整治典型項目出爐
- 面向“十五五”,廣東全域土地綜合整治如何再出實效?
- 整治實施方案在應對市場變化和實際情況時,缺乏動態調整機制,如何解決?
- 如何確保鄉鎮國土空間規劃與全域土地綜合整治實施方案的有效銜接和融合編制?
- 產業在全域土地綜合整治中扮演什么角色?如何通過整治為產業發展提供空間和要素保障?
- 當前全域土地綜合整治面臨哪些主要規劃銜接問題?




